Khloé Kardashian and Kris Jenner have reportedly just dropped $37 Million on two side-by-side mansions near Kim Kardashian’s massive compound in Hidden Hills, CA.
The ‘Keeping Up With The Kardashians’ stars splashed down the huge amount of cash around Christmas time, purchasing neighboring lots in the upscale community. At the time, it was unclear how much the duo spent on the property, but plans have now revealed the massive development of the family’s homes.
According to property records, Khloé paid $17 million for a 1.86-acre lot, and on the same day, Kris Jenner dropped $20 million.
See Details…Below.

According to one report, the reality stars purchased the property in an LLC registered to a small development company called, Metro Development Homes.
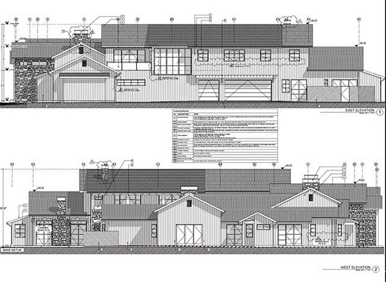
In a listing for the property on Realtor.com, blueprints for a “proposed house” are included which matches the current images for the development. The drawing (above) is a rendering of what Khloe’s property is going to look like, according to the New York Post.
Of course, the Kardashian family has deep roots in Hidden Hills, with Kim Kardashian owning one of the largest homes in the area — and Kris living there since the beginning of their reality show.
Scroll For More Details!

According to reports, an apparent $28.3 million of the cash is going into the construction and development of both properties.
The mother-and-daughter duo spent less than $9 million to purchase the land and begin building the massive property.
So, why is it so much you ask?
Well, according to the records, Kris Jenner’s new home will include 16,500 square feet of living space, eight bedrooms, and 9.5 bathrooms. Plus, it will include an eight-car garage, a movie theater, a full gym, a guesthouse, and a custom pool with its own cabanas!
See The Photos!

The Kardashian’s are not the first celebrities to live on this exact spot in L.A, Britney Spears once rented the home which sat on top of the land — which was eventually demolished.
At the time, Britney rented the property for several years at $25,000 a month. The home was leveled after the former owner ‘Million Dollar Listing’ star Tracy Tutor’s father — Ron Tutor — sold the house in 2012.
We are guessing Khloe’s new massive home will include a spot for Tristan Thompson and the couple’s daughter, True, as long as he deals with that whole…other situation…you know the one!
